ANDOVER MA BEFORE.PNG
ANDOVER MA BEFORE.PNG
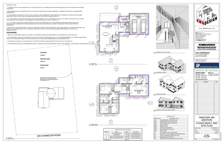
COVER SHEET
COVER SHEET
1ST FLR PLAN
1ST FLR PLAN
2ND FLR PLAN
2ND FLR PLAN
Roof Plan
Roof Plan
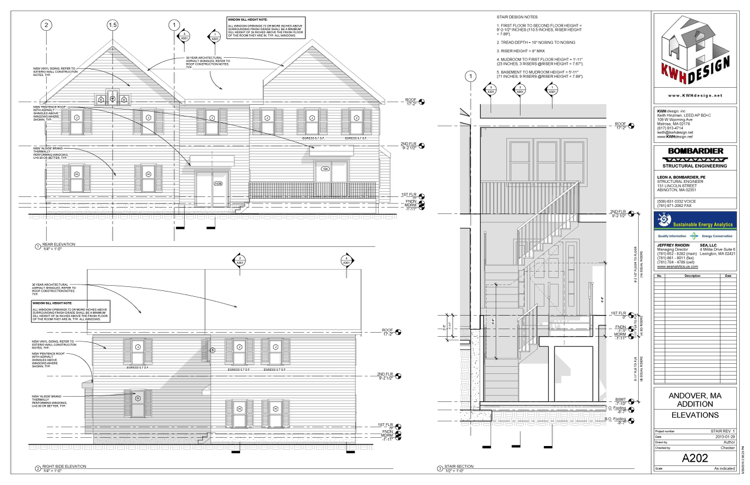
Elevations
Elevations
Elevations
Elevations
Sections
Sections